5 Clarewood Avenue, Glenleith

Contact for price Sold!

Great 1st Home or Excellent Rental Return

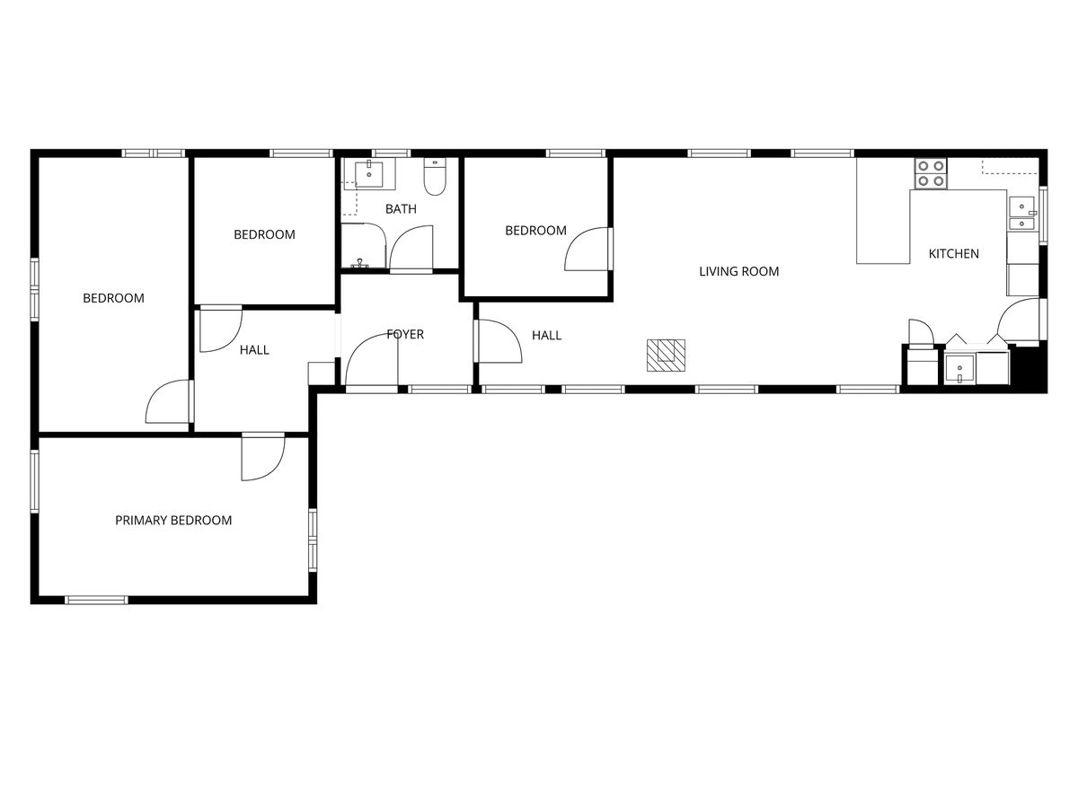
Discover easy living in this well-maintained Glenleith home, perfectly positioned on a mainly bush clad 933sqm section. With welcoming street appeal and a move-in-ready interior, this property offers comfort, practicality, and a peaceful setting with lovely valley views. Inside, you’ll find three bedrooms, thoughtfully arranged for family living or guest accommodation, as well as another room off the lounge, ideal as an office, rumpus or kids play room.
The home has new PVC double glazed bedroom windows and has good insulation in the ceiling and 90% external & internal walls, as well as a very efficient log burner and two heatpumps for winter warmth. The living spaces are light-filled and inviting, creating a relaxed atmosphere from the moment you step in.
The kitchen and bathroom areas are tidy and functional, leaving nothing to do except move in and enjoy—while still offering scope to add personal touches over time. Situated in a sought-after area known for its tranquillity and proximity to Ross Creek, Otago University and on a good bus route, this property presents an appealing opportunity for those wanting comfort, convenience and a lovely outlook. With a long term stable rental history it will also appeal to those keen to build their portfolio.

square: 933 Square metres
Bedrooms: 3
Bathrooms: 1

property information

main information
  • Property ID: 1697556
  • Bedrooms: 3
  • Price: Contact for price
  • Bathrooms: 1
  • Square: 933 Square metres

documents


See the video TOUR

Do you like this offer? Contact Us to get more
information!

contact Us

We are here to help with all your real estate needs and questions. Let us know what's on your mind and start a conversation.