18 Alma Street, Saint Kilda

Contact for price Sold!

Warm, Welcoming and Beautifully Presented.

Stylish, sun-filled, and fully renovated, this beautifully updated home strikes the perfect balance between modern convenience and relaxed living. Every detail has been thoughtfully considered to create a warm, welcoming, and high-quality space, inside and out.
Freshly painted and fitted with new carpet throughout, the interiors are light, bright, and move-in ready. Built-in wardrobes offer practical storage, while insulation and fully double glazed windows ensure year-round comfort. The home has also been rewired and connected to fibre internet, combining peace of mind with modern efficiency.

At the heart of the home, the generous kitchen stands out with quality finishes, abundant storage, and a large walk-in pantry — ideal for families or anyone who loves to cook.

The newly renovated bathroom is both stylish and functional, finished to a high standard with attention to detail.
Indoor-outdoor living is effortless, with doors opening to a private, fully fenced garden — perfect for entertaining, relaxing, or giving kids and pets space to play. A second shower and toilet add extra convenience, especially for surfers or beachgoers.

With off-street parking and a prime location just minutes from the beach, local cafés, and quality schools, everything you need is right at your doorstep.

This move-in-ready home offers space, style, and smart modern upgrades — don’t miss your chance to make it yours.

square: 405 Square metres
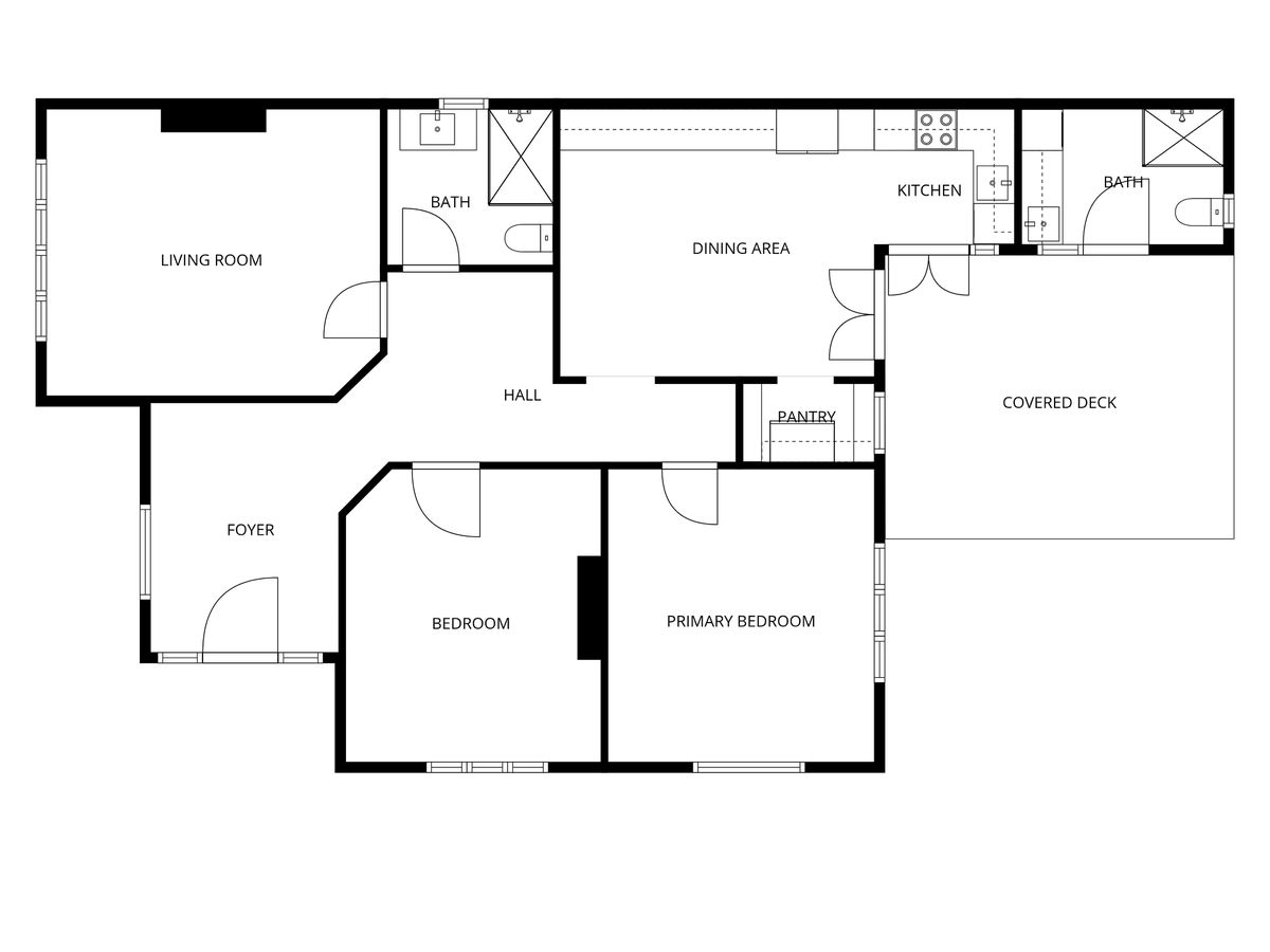
Bedrooms: 2
Bathrooms: 2
Garages: 1

property information

main information
  • Property ID: 1664361
  • Bedrooms: 2
  • Price: Contact for price
  • Bathrooms: 2
  • Square: 405 Square metres
  • Garage: 1

documents


See the video TOUR

Do you like this offer? Contact Us to get more
information!

contact Us

We are here to help with all your real estate needs and questions. Let us know what's on your mind and start a conversation.